Rif: IMMO-125092707
ALBIGNASEGO
PADOVA
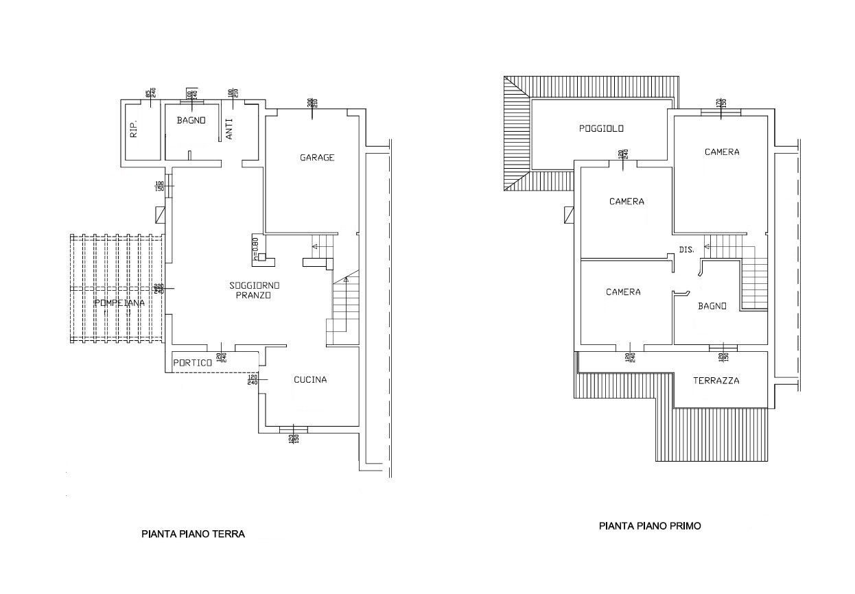
S. AGOSTINO - In ottimo contesto residenziale, proponiamo una bella porzione di bifamiliare anni '90 da poco rinnovata. L'abitazione è immersa in un grazioso giardino di circa 480 mq. sapientemente piantumato e dotato di irrigazione automatica. Composta al piano terra da ingresso, ampio soggiorno con camino, cucina abitabile, antibagno, bagno finestrato, garage di 20 mq. e ripostiglio. La zona notte si sviluppa al piano primo ed è composta da 3 camere matrimoniali, un ampio bagno finestrato e due comode terrazze. Esposizione Est/Sud/Ovest. Gli interventi ricevuti hanno permesso il raggiungimento della classe energetica B ed hanno riguardato in particolare: il rifacimento ed isolamento del tetto, l'installazione di un nuovo impianto di riscaldamento ibrido gas/pompa di calore, di una wallbox per la ricarica di auto elettriche, di pannelli fotovoltaici per una potenza di 3.4 kw con inverter e batterie di accumulo da 19.2 kw, oltre alla sostituzione di tutti i serramenti con modelli in legno a taglio termico basso emissivi. La dotazione comprende anche un impianto solare termico con 2 pannelli in vasca incassata nel tetto e accumulo da 300 litri, 5 tende da sole motorizzate, impianto di condizionamento. L'immobile si presente in ottimo stato, subito disponibile e pronto per essere abitato.
Consistenze
| Descrizione | Superficie | Sup. comm. |
|---|---|---|
| Principali | ||
| Immobile - piano terra | 90 Mq | 90 Mqc |
| Immobile - 1° piano | 79 Mq | 79 Mqc |
| Terrazza - 1° piano | 30 Mq | 9 Mqc |
| Box/Garage - piano terra | 20 Mq | 10 Mqc |
| Giardino/Resede | 480 Mq | 24 Mqc |
| Totale | 212 Mqc | |

